[Ngày 28/06/2024] Thi Công Dự Án Biệt Thự 240M2 Tại KĐT Vinh Heritage – Mr Tuấn

Thông tin dự án:

  • Chủ dự án: Anh Tuấn
  • Diện tích đất: 107.25m2
  • Diện tích sàn xây dựng: 240m2 (3 sàn)
  • Số tầng: 3

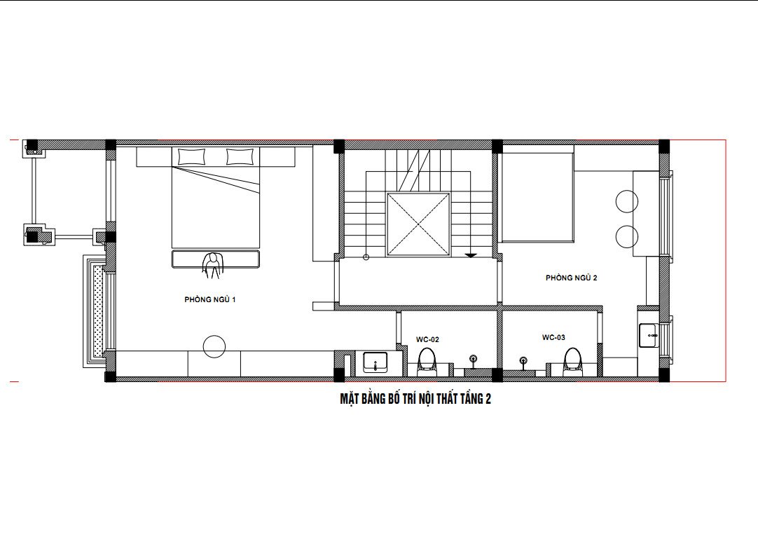
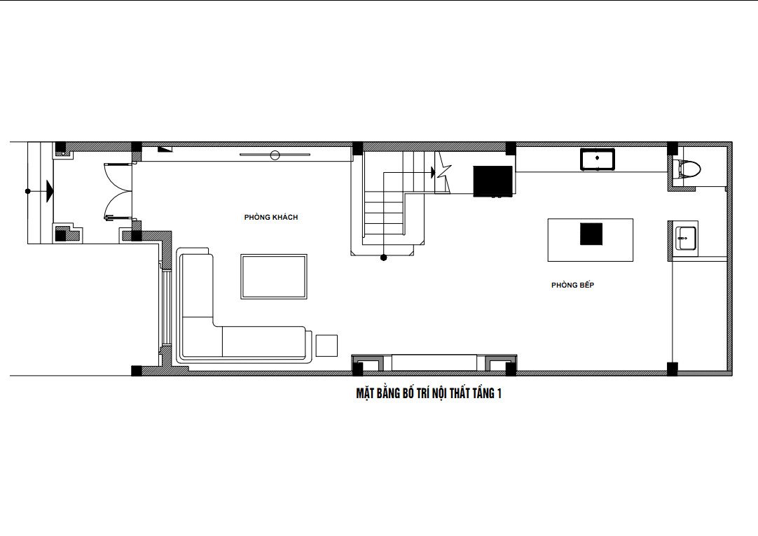
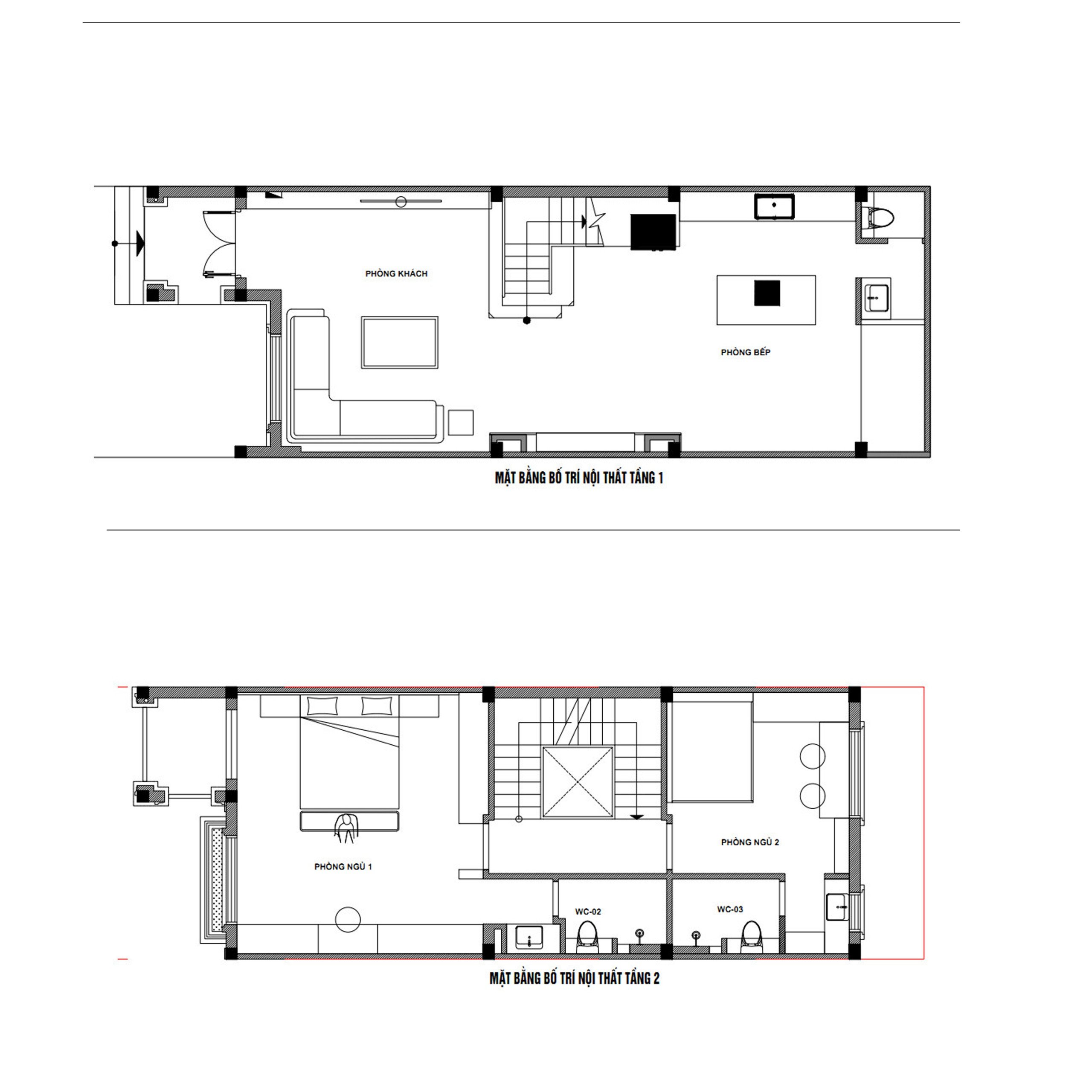
A. Hình ảnh mặt bằng

B. Hình ảnh thi công thực tế

Đánh Giá Bài Viết
[codfe_posts_related]

Để lại một bình luận

Email của bạn sẽ không được hiển thị công khai. Các trường bắt buộc được đánh dấu *